Logo CASAPU Construcciones Casapu

Diseño de Planos y Visualización 3D

Transformamos tus ideas en proyectos tangibles mediante planos arquitectónicos profesionales y renderizados 3D fotorrealistas. Visualiza tu proyecto antes de construirlo.

Planos Técnicos
Modelado 3D

Nuestros Servicios de Diseño

Planos Arquitectónicos

Creación de planos técnicos detallados, incluyendo plantas, alzados, secciones y detalles constructivos.

Modelado 3D Avanzado

Desarrollamos modelos tridimensionales precisos que te permiten explorar cada ángulo y detalle de tu proyecto con total realismo.

Renderizado Fotorrealista

Imágenes de alta calidad que muestran materiales, iluminación y ambientación tal como será el resultado final de tu construcción.

Proceso de Diseño Integral

Te mostramos cómo desarrollamos un proyecto completo: desde los planos técnicos iniciales hasta la visualización 3D final. Este es el proceso que seguimos para convertir tus ideas en proyectos constructivos reales.

Planos Técnicos Detallados

Planos Técnicos y Distribución

Creamos planos arquitectónicos profesionales que incluyen plantas de distribución, medidas precisas, superficies detalladas y toda la información técnica necesaria para la correcta ejecución del proyecto. Cada espacio está optimizado para maximizar funcionalidad y confort.

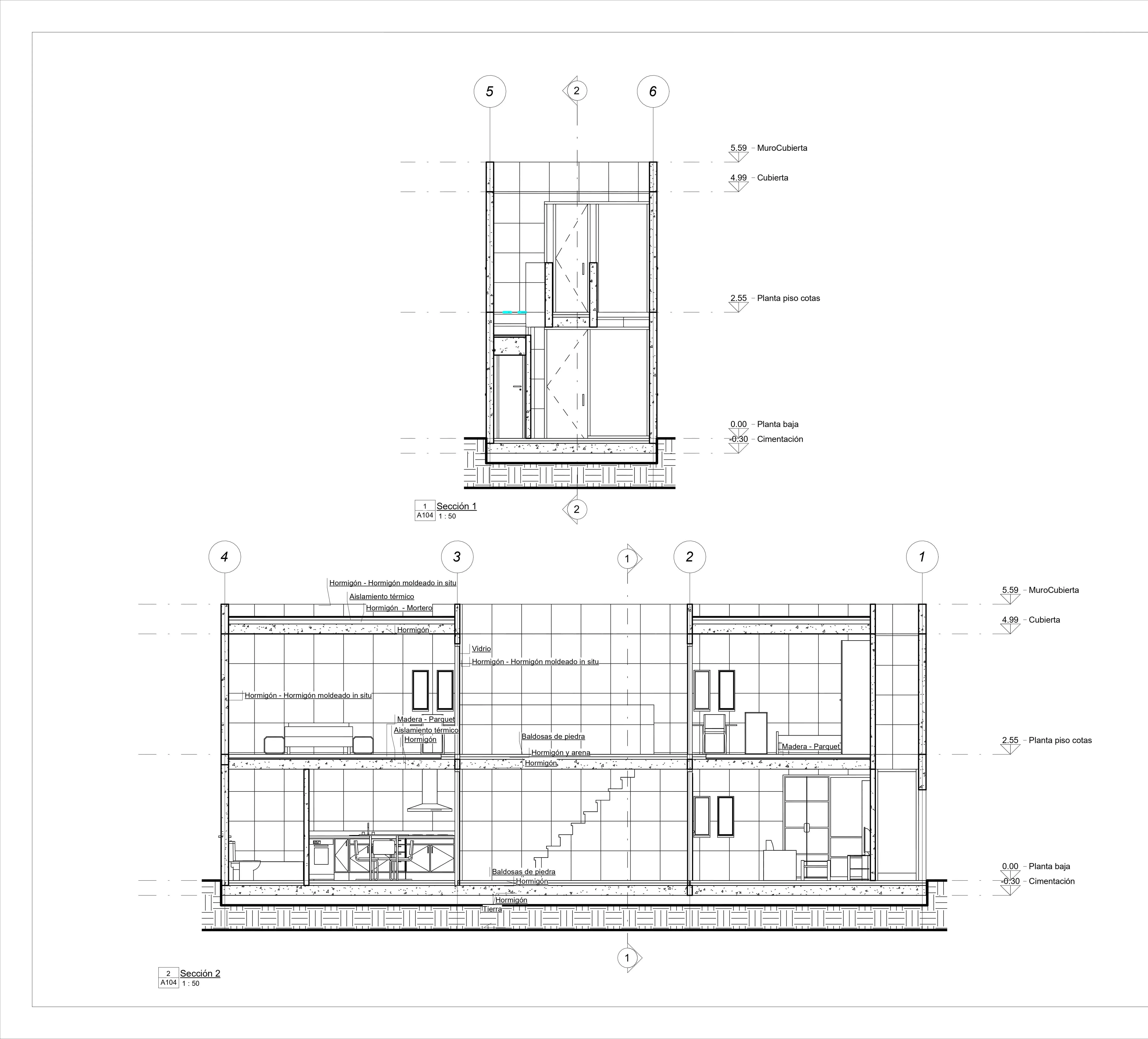
Secciones y Alzados

Secciones y Alzados Arquitectónicos

Desarrollamos secciones transversales y alzados que muestran la estructura vertical del proyecto, incluyendo alturas, niveles, escaleras y la relación entre espacios. Esta documentación técnica es fundamental para comprender la volumetría y proporciones de la construcción.

Visualización 3D del Proyecto

Modelado 3D y Perspectivas Fotorrealistas

Transformamos los planos técnicos en visualizaciones 3D fotorrealistas que te permiten ver exactamente cómo quedará tu proyecto terminado. Incluimos vistas exteriores, interiores, perspectivas en corte y renderizados con materiales y iluminación real para una comprensión completa del diseño.

Certificación Profesional

Nuestro equipo de diseño cuenta con la formación y certificación necesaria para garantizar que cada proyecto cumpla con los más altos estándares de calidad .

Certificación Profesional de Construcciones Casapu
Titulación Oficial en Diseño y Construcción

¿Listo para visualizar tu proyecto?

Convierte tus ideas en realidad con nuestro servicio profesional de diseño y visualización 3D. Te acompañamos desde el concepto inicial hasta la entrega del proyecto finalizado.